UTILIZAÇÕES - Energia
LOCALIZAÇÃO
Distrito – Vila Real e Bragança
Concelho – Alijó e Carrazeda de Ansiães
Local – Foz do rio Tua
Bacia Hidrográfica - Douro
Linha de Água – Rio Tua
DADOS GERAIS
Promotor – EDP - Gestão da Produção de Energia SA
Dono de Obra (RSB) – Movhera Engie
Projectista – EDP – Gestão da Produção de Energia SA/COBA/Quadrante/Arq. Souto Moura
Construtor – Barragem de Foz Tua ACE (Mota Engil/Somague/MSF)
Ano de Projecto - 2010
Ano de Conclusão - 2018
CARACTERÍSTICAS HIDROLÓGICAS
Área da Bacia Hidrográfica – 3809 km2
Caudal de cheia – 5800 m3/s
Período de retorno – 5000 anos
CARACTERÍSTICAS DA ALBUFEIRA
Área inundada ao NPA – 420,9 ha
Capacidade total –106,1 hm3
Capacidade útil – 10 hm3
Nível de pleno armazenamento (NPA) – 170,00
Nível de máxima cheia (NMC) – 171,00
Nível mínimo de exploração (NmE) – 167,00
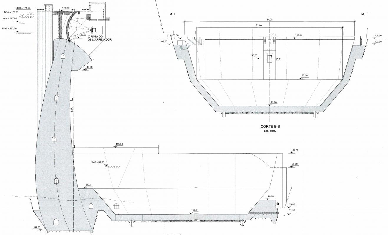
CARACTERÍSTICAS DA BARRAGEM
Betão – Abóbada de dupla curvatura
Altura acima da fundação – 108,00
Cota do coroamento – 172,00
Comprimento do coroamento – 275 m
Largura do coroamento – 5 m
Fundação – maciço granítico
Volume de betão – 316 900 m3
DESCARREGADOR DE CHEIAS
Localização – zona central da barragem
Tipo de controlo – 4 comportas de segmento
Tipo de descarregador – lâmina livre
Cota da crista da soleira – 159,00
Desenvolvimento da soleira – 4 x 15,70 m
Caudal máximo descarregado – 5600 m3/s
Dissipação de energia – bacia de dissipação por impacto
DESCARGA DE FUNDO
Localização – prumada do pilar central
Tipo – conduta metálica
Secção da conduta – rectangular 2,10 m x 3,10 m
Caudal máximo – 200 m3/s
Controlo a montante – comporta vagão
Controlo a jusante – comporta segmento
CENTRAL HIDROELÉTRICA
Tipo de central – subterrânea
Nº de grupos instalados – 2
Tipo de grupos – turbinas reversíveis
Potência total instalada – 270 MW
Energia produzida em ano médio – 275 GWh
CAUDAL ECOLÓGICO
Diâmetro circuito terminal – Ø 1,3 m
Caudal máximo – 12 m3/s
Comando – válvula dispersora



